案例一:60平米丨北欧气概
设想机构:JORYA玖雅
那套案例是60平米的小户型,不只超多的收纳,仍是一个两居室,别的还有客餐厅拆修案例图。


▲平面图

▲通过对门厅两侧墙体的革新,增加了门厅的衣帽、鞋柜等储物功用拆修案例图。

▲客厅的设想亮点是壁龛,在构造裂缝处充实操纵墙面增加收纳和粉饰拆修案例图。家具、灯具、粉饰画的选择也很讲究。

▲多功用吧台同时处理了小餐桌和电视柜的问题,还能起到必然的功用划分感化拆修案例图。

▲高凳能够刚好放置在吧台下,不会影响交通拆修案例图。

▲主卧选择最让人放松安静的色彩——蓝色拆修案例图。

▲阳台处设立卡座及吊柜书架,满足了业主休闲图书角的愿景,同时也是猫咪的游玩空间拆修案例图。

▲次卧阳台靠近卫生间,所以设想师通过必然的水电革新,将洗衣房功用放置到阳台空间拆修案例图。
案例二:47平米丨复式小户型
设想机构:熹维室内设想

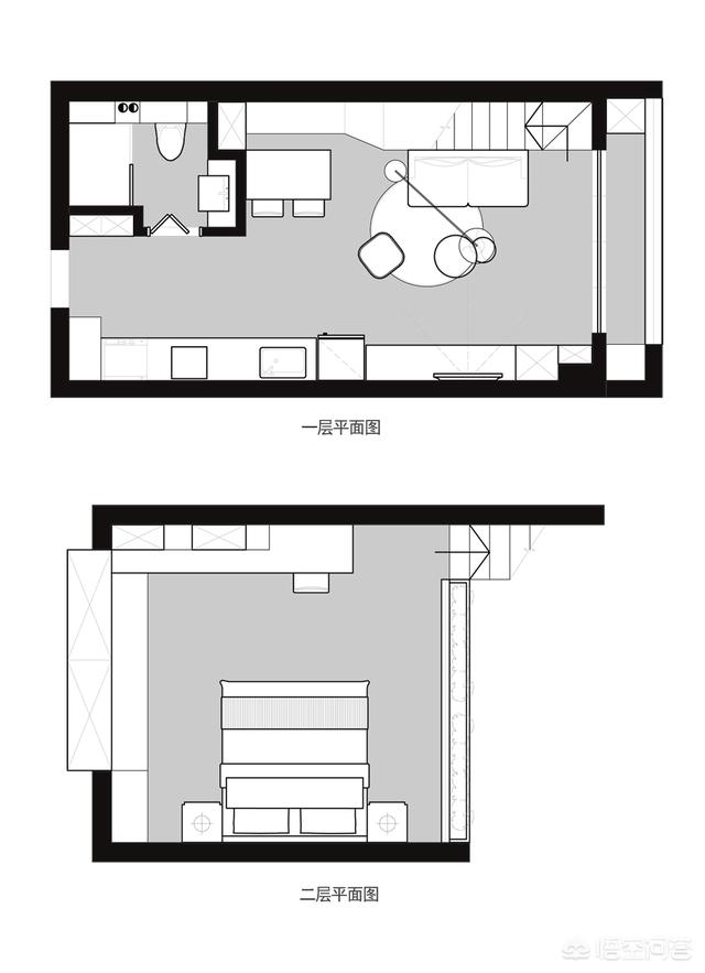
▲平面图

▲47㎡的挑高公寓,下层客厅、餐厅,上层卧室拆修案例图。

▲因为户型比力小,业主想多一些储物空间,收纳各类小玩意,如许整个空间也会显得整洁些拆修案例图。于是楼梯柜、卡座的操纵都是设想师想要多增加一些储物空间。我想每一位单独栖身的她或是他都想要一个温暖又不失气量的家,一个只属于你的小六合......希望如许一个北欧风的小家你会喜好。

▲通过复古玻璃吊灯和音符抱枕、绿植等粉饰,想要把家营造出温馨温馨的气氛拆修案例图。

{img}
▲上层卧室不大, 但简洁高雅,制止给人压制之感拆修案例图。
免责声明
本文仅代表作者观点,不代表本站立场,著作权归作者所有;作者投稿可能会经本站编辑修改或补充;本网站为服务于中国中小企业的公益性网站,部分文章来源于网络,百业信息网发布此文仅为传递信息,不代表百业信息网赞同其观点,不对内容真实性负责,仅供用户参考之用,不构成任何投资、使用建议。请读者自行核实真实性,以及可能存在的风险,任何后果均由读者自行承担。如广大用户朋友,发现稿件存在不实报道,欢迎读者反馈、纠正、举报问题;如有侵权,请反馈联系删除。(反馈入口)
本文链接:https://www.byxxw.com/zixun/17747.html- 上一篇: 过道吊迎风水禁忌有哪些?
- 下一篇: 你家拆修成了什么样子?有哪些美妙适用的设想?








