幸福里124平米中式气概拆修效果图----太原业之峰粉饰
小区名称:幸福里
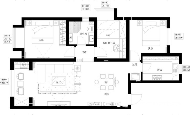
小区面积:124㎡
户型:3室2厅2卫2厨
气概:中式气概
设想申明:业主为一对老年夫妇,岁月的陈迹使得他们对中国古老文化元素由衷的喜欢,,按照业主的喜好兴趣,气概上定为中式,构造长进门考虑到视觉上的温馨性,将衣帽柜向里面推进,如许不会让进来的人觉得压制之感,在衣帽柜的边上摆上一组鱼缸,生动的鱼缸气象让我们在外一天的劳累化解于无形之中,顶墙地三者的外型连系让中式元素表示的淋漓尽致,卧室合理的功用划分与客厅阳台的连系,温馨休闲之于喝上一壶好茶赏识窗外美景,如许才是家的觉得家的味道中式拆修效果图。






免责声明
本文仅代表作者观点,不代表本站立场,著作权归作者所有;作者投稿可能会经本站编辑修改或补充;本网站为服务于中国中小企业的公益性网站,部分文章来源于网络,百业信息网发布此文仅为传递信息,不代表百业信息网赞同其观点,不对内容真实性负责,仅供用户参考之用,不构成任何投资、使用建议。请读者自行核实真实性,以及可能存在的风险,任何后果均由读者自行承担。如广大用户朋友,发现稿件存在不实报道,欢迎读者反馈、纠正、举报问题;如有侵权,请反馈联系删除。(反馈入口)
本文链接:https://www.byxxw.com/zixun/18492.html- 上一篇: 隆源国际城120平中式气概拆修效果图参考案例--天鹅湖粉饰
- 下一篇: 拆修能不克不及尽量不做吊顶?








