首页 房产频道正文

都雅的拆修气概有哪些?

小业 房产频道 2021-01-02 05:30:46 5918 0

【房屋户型】:3+1

【房屋面积】:134平米

【拆修气概】:现代简约

【拆修预算】:25万元

▼玄关拆修效果图,那本来是一个入户花园,但是中间隔了一面墙设想成一个儿童房,便是高鞋柜的后面区域,那个就是我们户型中说到的3+1中的+1房;

都雅的拆修气概有哪些?

▼客餐厅看向玄关拆修效果图,中间的垭口接纳白色的实木收口,与白色的踢脚线构成一体,视觉上更同一;

都雅的拆修气概有哪些?

▼沙发布景墙用一组粉饰画粉饰拆修效果图,简洁又时髦,沙发边不是边几,取而代之的是天堂鸟绿植,净化空气,呈现出清爽温馨的空间;

都雅的拆修气概有哪些?

▼深灰色的布艺沙发拆修效果图,与原木色的茶几很搭;

都雅的拆修气概有哪些?

▼客厅看向餐厅及厨房拆修效果图,那里除了沙发布景墙和吊顶内圈是浅绿色外,其他墙面则是更浅一点的浅绿色,那颜色上有个条理,看起来愈加有空间感;

都雅的拆修气概有哪些?

▼餐厅拆修效果图,原木色餐桌椅及餐边柜,看起来更亲热、温馨,冰箱摆在餐厅,利用也便利,并且也扩大了厨房的区域

都雅的拆修气概有哪些?

▼厨房接纳木色的橱柜拆修效果图,接近天然,回归天然,让人觉得更亲热、放松;

都雅的拆修气概有哪些?

▼主卧拆修效果图,灰色系墙面,搭配卡其色的软包床头,绿色的床品,觉得很小清爽;

都雅的拆修气概有哪些?

▼白色碰木色电视柜拆修效果图,美妙又适用,并且在色彩上来说木色起到提亮整个空间的感化;

都雅的拆修气概有哪些?

▼与主卧比拟拆修效果图,次卧搭配出来的气氛则偏向成熟、稳重型,如那深色的衣柜、电视柜,还有那灰色系的床品等;

都雅的拆修气概有哪些?

▼儿童房拆修效果图,因为小孩玩具比力多,所以床尾做了一个专门收纳玩具的层板架,用于集中收纳,以便让小孩从小就养成爱整理的好习惯;

都雅的拆修气概有哪些?

▼主卫拆修效果图,正方形淋浴房做为干湿别离,浴室吊柜,柜门接纳镜子,它能够储物又能够做为镜子,一举两用,关于小面积的卫生间来说,接纳那种柜子最好不外了,因为能够最大化的增加收纳功用;

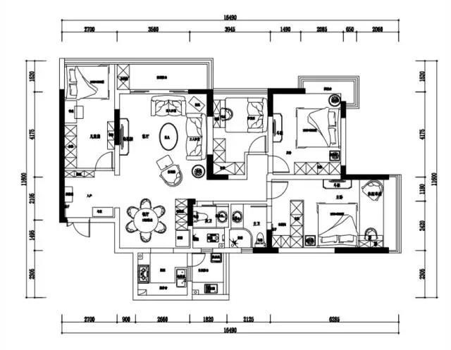
原建筑构造图

都雅的拆修气概有哪些?

平面安插图

都雅的拆修气概有哪些?

免责声明

本文仅代表作者观点,不代表本站立场,著作权归作者所有;作者投稿可能会经本站编辑修改或补充;本网站为服务于中国中小企业的公益性网站,部分文章来源于网络,百业信息网发布此文仅为传递信息,不代表百业信息网赞同其观点,不对内容真实性负责,仅供用户参考之用,不构成任何投资、使用建议。请读者自行核实真实性,以及可能存在的风险,任何后果均由读者自行承担。如广大用户朋友,发现稿件存在不实报道,欢迎读者反馈、纠正、举报问题;如有侵权,请反馈联系删除。(反馈入口)

本文链接:https://www.byxxw.com/zixun/7109.html