首页 房产频道正文

想把房子拆成欧式气概,有什么保举案例吗?

小业 房产频道 2021-01-02 14:31:02 5292 0

想把房子拆成欧式气概,有什么保举案例吗?

▲ 进门的鞋柜和换鞋凳(柜)

想把房子拆成欧式气概,有什么保举案例吗?

▲ 湖蓝色的粉饰酒柜

想把房子拆成欧式气概,有什么保举案例吗?

▲ 客厅的花鸟壁纸给整个村落气概定下了基调

想把房子拆成欧式气概,有什么保举案例吗?

▲ 吊顶做的斜顶欧式家拆设想效果图,配上多头烛台水晶吊灯

想把房子拆成欧式气概,有什么保举案例吗?

▲ 实木框架的布艺沙发

想把房子拆成欧式气概,有什么保举案例吗?

▲ 角落上的多斗柜也很斑斓

想把房子拆成欧式气概,有什么保举案例吗?

▲ 壁炉外型柜是现场木匠造做的欧式家拆设想效果图,手绘是后期加上去的

▲ 整个电视墙用木造护墙板做外型

想把房子拆成欧式气概,有什么保举案例吗?

▲ 半开放式的厨房

想把房子拆成欧式气概,有什么保举案例吗?

▲ 橱柜是现场造做欧式家拆设想效果图,下柜是砖砌的,上柜是木匠造做

想把房子拆成欧式气概,有什么保举案例吗?

▲ 楼梯下的空间做了卡座餐厅

想把房子拆成欧式气概,有什么保举案例吗?

▲ 一张花朵型台面的小圆桌

想把房子拆成欧式气概,有什么保举案例吗?

▲ 楼梯很有特色欧式家拆设想效果图,每一踏步的立面都用花砖粉饰

想把房子拆成欧式气概,有什么保举案例吗?

▲ 整个七彩的美

想把房子拆成欧式气概,有什么保举案例吗?

▲ 楼下卫生间干区也是砖砌的

想把房子拆成欧式气概,有什么保举案例吗?

▲ 卫生间的门是蒂凡尼气概艺术玻璃

想把房子拆成欧式气概,有什么保举案例吗?

▲ 桑拿板做的卫生间吊顶

想把房子拆成欧式气概,有什么保举案例吗?

▲ 上楼看到粉绿色折叠门的书房

想把房子拆成欧式气概,有什么保举案例吗?

▲ 所有家具的颜色都有一种冰淇淋的清爽感

想把房子拆成欧式气概,有什么保举案例吗?

▲ 飘窗不大但是很精致

想把房子拆成欧式气概,有什么保举案例吗?

▲ 从书房向楼梯回望进来

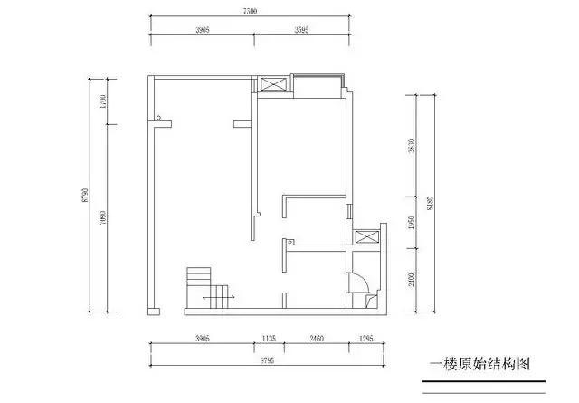
想把房子拆成欧式气概,有什么保举案例吗?

▲ 一楼原始构造图

想把房子拆成欧式气概,有什么保举案例吗?

▲ 二楼原始构造图

想把房子拆成欧式气概,有什么保举案例吗?

▲ 一楼平面安插图

想把房子拆成欧式气概,有什么保举案例吗?

▲ 二楼平面安插图

更多出色拆修案例欧式家拆设想效果图,欢送存眷绘本家居设想,微信号:huibenwan

免责声明

本文仅代表作者观点,不代表本站立场,著作权归作者所有;作者投稿可能会经本站编辑修改或补充;本网站为服务于中国中小企业的公益性网站,部分文章来源于网络,百业信息网发布此文仅为传递信息,不代表百业信息网赞同其观点,不对内容真实性负责,仅供用户参考之用,不构成任何投资、使用建议。请读者自行核实真实性,以及可能存在的风险,任何后果均由读者自行承担。如广大用户朋友,发现稿件存在不实报道,欢迎读者反馈、纠正、举报问题;如有侵权,请反馈联系删除。(反馈入口)

本文链接:https://www.byxxw.com/zixun/7206.html