首页 房产频道正文

厨房和餐厅要怎么设想?

先说厨房,再说餐厅,再说厨房和餐厅连系的情况厨房餐厅拆修效果图。

一、厨房:

中国城市的中小型室第里,大部门都是现代意义的集成厨房,功用上的设想大同小异,强调高效的操做流水线和便当适用的储物空间厨房餐厅拆修效果图。

但我们不希望厨房只是一个脏乱差的家务间,而是愈加讲求生活体例的烹调美食的惬意场合厨房餐厅拆修效果图。从以下五点来说:

1、流线

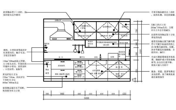
流线是厨房设想的底子,围绕着核心需求——做饭展开:拿→洗→切→炒→盛,一个厨房好用与否,关键就是那五个步调能否跟尾适当,厨房面积固然不大,但若是做个饭还得转来转去,仍是会觉得很累厨房餐厅拆修效果图。

厨房和餐厅要怎么设想?

2、规划

厨房的规划体例一般分为5种,大部门在建筑户型阶段就根本定型了,阐扬的余地不是很大厨房餐厅拆修效果图。

一字型、L型、双排、U字型、岛台,此中U字型的厨房操纵率最高,其实很好理解,交通空间小,利用上更省事省力,并且有更大的面积用来做柜体和台面厨房餐厅拆修效果图。

厨房和餐厅要怎么设想?

3、照明

厨房照明包罗根底照明、台面照明、箱内照明,根底照明各人都晓得,国内一般都是集成在吊顶里的方灯,国外用吊灯和射灯的也挺多的厨房餐厅拆修效果图。台面照明、箱内照明大部门人可能不会留意,没有也能用,但是有会让利用更便利。各人能够去宜家看看它们的厨房设想,我觉得有良多点值得借鉴。

厨房和餐厅要怎么设想?

4、收纳

除了整体合理的规划,良多收纳细节也应该留意厨房餐厅拆修效果图。

厨房和餐厅要怎么设想?

如今大部门厨房都是由简单的柜门和抽屉构成,尺寸大部门没有颠末细化设想,其实按照收纳物品和利用习惯来规划尺寸才是最底子的原则厨房餐厅拆修效果图。

合理的拉篮设想:

厨房和餐厅要怎么设想?

柜门的操纵:

厨房和餐厅要怎么设想?

墙面置物架厨房餐厅拆修效果图,模块化的设想,能够自在组合,有点类似于宜家的芬托挂杆:

厨房和餐厅要怎么设想?

若是不便利打孔厨房餐厅拆修效果图,尤其是出租房,能够选择类似的可伸缩置物架,靠上下的力支持:

厨房和餐厅要怎么设想?

柜子里和抽屉里的工具绝不是乱放的厨房餐厅拆修效果图,最好有所章法和分类,整齐齐截:

厨房和餐厅要怎么设想?

那种上下层的抽屉在高档橱柜中很常见:

厨房和餐厅要怎么设想?

抽屉内部的朋分:

厨房和餐厅要怎么设想?

当然也能够后续参加那种,宜家和网上都有卖厨房餐厅拆修效果图。

5、清洁

起首要说的就是台下盆,台下盆就是水槽安拆在橱柜台面下面,水槽的内沿与台面开的洞大小是一致的厨房餐厅拆修效果图。水槽和台面之间用粘结剂粘结。还有一种选择就是台中盆,也叫平嵌式,就是把根据水槽安拆边的尺寸,在橱柜的台面打磨去一层,把水槽跟台面做成一个平面,那种安拆体例美妙,而且水槽与橱柜台面高度齐平,扫除卫生很便利。

厨房和餐厅要怎么设想?

台上盆除了安拆省事儿、略微廉价一些,觉得没什么利用上的长处厨房餐厅拆修效果图。

厨房和餐厅要怎么设想?

拉伸水龙头,便利清洁水槽的各个位置,洗菜洗碗都便利,缺点就是比通俗水龙头要贵很多厨房餐厅拆修效果图。

厨房和餐厅要怎么设想?

二、餐厅:

现代家居中,餐厅正日益成为重要的活动场合,安插好餐厅,既能缔造一个温馨的就餐情况,还会使居室增色很多厨房餐厅拆修效果图。

1、墙面:能够做差别色彩或材量的区分厨房餐厅拆修效果图,或者用置物格、搁板装点,还能收纳一些小物

厨房和餐厅要怎么设想?

2、桌椅:餐厅软拆最最重要的就是桌椅的选择了,我在之前关于餐桌选择的问答中详细论述过,此处不再赘述厨房餐厅拆修效果图。

厨房和餐厅要怎么设想?

3、空中:为了划分区域,餐厅可能会接纳差别材量的空中,也可能仅仅用一张地毯来界定厨房餐厅拆修效果图。

厨房和餐厅要怎么设想?

4、吊灯:吊灯没需要吊的太高,不碰头即可,低垂的灯光会让食物看起来愈加诱人,促进食欲厨房餐厅拆修效果图。

厨房和餐厅要怎么设想?

5、粉饰画:做为家庭情况中最艺术的装点,粉饰画无所不在厨房餐厅拆修效果图。

厨房和餐厅要怎么设想?

三、厨房和餐厅

常见于公寓或开放厨房,通俗家庭不是很常见,所以简单提一下厨房餐厅拆修效果图。

厨房和餐厅要怎么设想?

公寓中的一字型橱柜搭配圆桌,让整个空间愈加灵动而不拥挤厨房餐厅拆修效果图。

厨房和餐厅要怎么设想?

连系开放厨房的岛台设置餐桌厨房餐厅拆修效果图。

-------------------------------

"埏埴认为器,当其无,有器之用厨房餐厅拆修效果图。凿户牖认为室,当其无,有室之用。故有之认为利,无之认为用。"-- 老子《道德经》

厨房和餐厅要怎么设想?

谢谢各人对我们的存眷,以及对所分享内容的喜好厨房餐厅拆修效果图。

我们新推出版籍《有室之用 北欧气概家居软拆设想手册》,京东、当当、淘宝均有销售,有兴趣的伴侣能够去看一下厨房餐厅拆修效果图。

册本内容的次要部门为软拆搭配要素,包罗色彩和图案、家具的选择和安插、灯具和空间照明、布艺家纺、墙面粉饰、花艺和绿植等部门厨房餐厅拆修效果图。并精选12个好家案例,各有偏重,或开阔,或紧凑,或简约,或清爽,从平面规划到空间粉饰,皆有可取之处。

免责声明

本文仅代表作者观点,不代表本站立场,著作权归作者所有;作者投稿可能会经本站编辑修改或补充;本网站为服务于中国中小企业的公益性网站,部分文章来源于网络,百业信息网发布此文仅为传递信息,不代表百业信息网赞同其观点,不对内容真实性负责,仅供用户参考之用,不构成任何投资、使用建议。请读者自行核实真实性,以及可能存在的风险,任何后果均由读者自行承担。如广大用户朋友,发现稿件存在不实报道,欢迎读者反馈、纠正、举报问题;如有侵权,请反馈联系删除。(反馈入口)

本文链接:https://www.byxxw.com/zixun/7247.html